LINKS ARCHITECTS

Bet Kenesset – Ramat Shilo

Bet Kenesset – Ramat Shilo

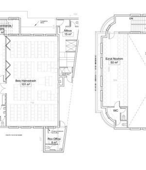
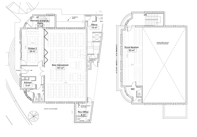
Concept design for the Ohev Yisrael Kopichnitz shul in Ramat Shilo. With a challenging shaped site we developed a rich and traditional form to the building – playing on various stone features and curved walls to ensure symmetry and a defined main elevation to the street.

Get In Touch

We’d love to hear from you! Whether you have questions, need support, or just want to say hello, fill out the form below and we’ll get back to you as soon as possible.

Scroll to Top